Overview

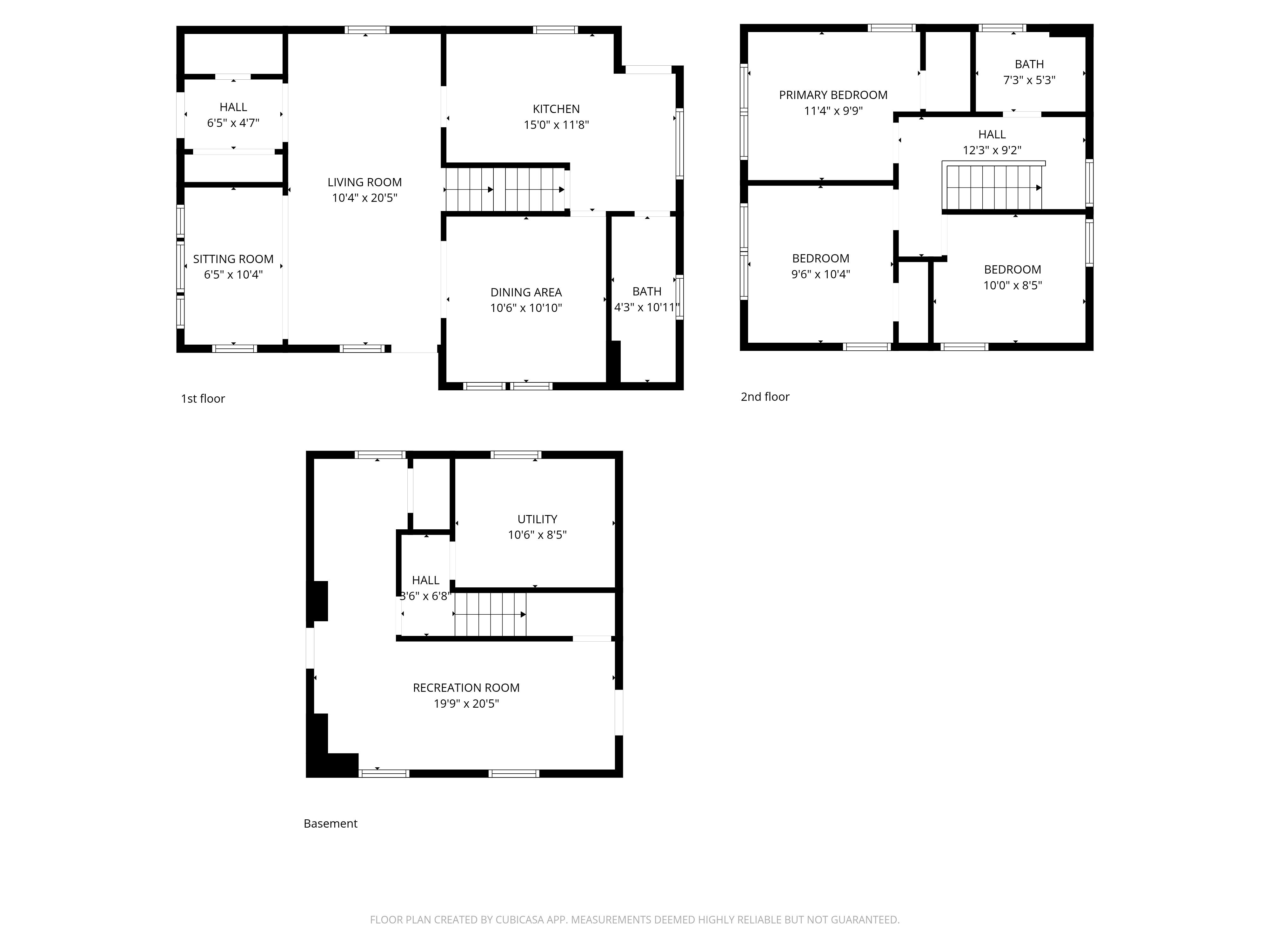
This beautifully updated and well-maintained 3-bedroom, 2-full bath Colonial offers a convenient location within walking distance to NYC transportation and close to major highways. The first floor features a welcoming entry foyer, living room, dining room, kitchen, and a full bath. Upstairs you’ll find all three bedrooms along with the second full bathroom. The partially finished basement provides additional living space, perfect for a rec room or home office, and includes French drains and a sump pump with battery backup for added peace of mind. Additional highlights include radiant heating on the first and second floors, central air on the second floor with split units on the first floor, a whole-house water filter and water softener, alarm system, and an electric vehicle charging outlet. Outside, enjoy a nice backyard ideal for entertaining, along with a driveway that accommodates multiple vehicles and a detached one-car garage.

Property Type Single family
pattern image
dsc09155

3D Tour

3D Tour
pattern white image
pattern white image

Floor Plans

pattern white image
pattern white image

Videos

( no music ) 33 Beechwood Ave, Bogota, NJ
33 Beechwood Ave, Bogota, NJ

Presented by

/
pattern white image

Get in touch

Thank you!

Your message is sent.

We will be in touch with you soon.

pattern image

Location

pattern image